Zwei exklusive Badumbauten in Haltern
Der Kunde eines großzügigen Einfamilienhauses in Haltern wünschte sich zwei sehr individuelle und exklusive Bäder, in denen Großzügigkeit, Komfort und handwerkliche Qualität im Vordergrund stehen.
Adresse und Kontakt
Klein GmbH & Co. KG
bad & heizung
Buschgrundstraße 37
45894 Gelsenkirchen
T (02 09) 9 30 60-0
info@klein-badundheizung.de

Vorhandene Gegeben-
heiten perfekt nutzen
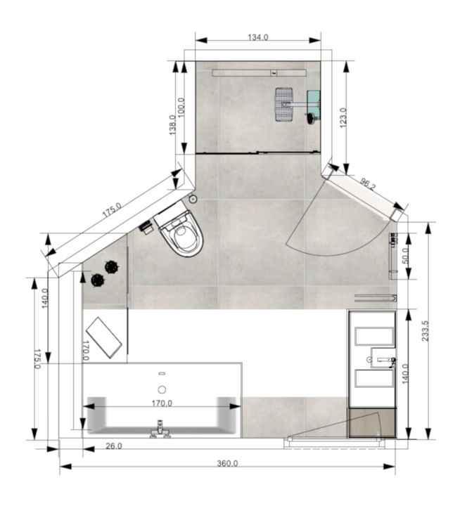
Die Raumplanung für das großzügige Elternbad war trotz der relativ großen Grundfläche etwas knifflig. Mehrere Dachschrägen, ein vorhandener Wäscheabwurf und die vorgegebene Position der Dusche gaben den Badplanern relativ wenig Freiraum.
Seitens des Kunden waren möglichst viel Stauraum und Ablageflächen und auch eine Sitzgelegenheit in Wannennähe erwünscht.
Das Hauptbad vor dem Umbau:


Neben der Qualität und Funktionalität legen wir ganz besonderen Wert auf gutes Design und wertige Materialien – wir möchten, dass der Kunde jeden Tag wieder gerne sein Badezimmer nutzt und auch der Besuch einen kleinen ‚Aha-Effekt‘ hat, wenn er das Gäste-WC das erste Mal betritt!
Fei Klein
Bewegungsfreiheit trotz Dachschrägen
In diesem Bad wurde aus der „Not“ eine Tugend gemacht – die Ausarbeitung des Wannenbereiches unterhalb der Schrägen gibt dem Raum an dieser Stelle sehr viel Gemütlichkeit für das entspannte Wannenbad. Und um den Duschbereich optisch ein wenig vom restlichen Raum abzugrenzen, hat man sich hier für eine Großformatfliese mit dunkler Marmoroptik entschieden. Deckenstrahler im Duschbereich sorgen dafür, dass hier trotz der dunklen Wandfliese keine düstere Ecke entsteht.

Licht-Spiel
Die Atmosphäre eines jeden Raumes hängt maßgeblich von der Beleuchtung ab. Und da man gerade das Badezimmer in unterschiedlichen Situationen nutzt, ist es besonders wichtig, die passende Stimmung erzeugen zu können.
Mit der indirekten Beleuchtung an der Ablagefläche hinter der Badewanne werden Akzente auf die Dekoration gesetzt und es entsteht an dieser Stelle durch die Schräge kein ‚dunkles Loch‘.

Maß-Arbeit
Um ein einheitliches, feuchtraum-geeignetes Material bei den Badmöbeln und einen dazu passenden Auszug an der Badewannen-Wand zu erhalten, mussten diese Arbeiten von einem erfahrenen Schreiner ausgeführt werden.
Dadurch konnte neben dem grifflosen Auszug im Wannenbereich auch die Klappe für den Wäscheabwurf perfekt in die Waschtischanlage integriert werden. Das Ganze wurde abgerundet durch die durchlaufende Fensterbank in gleicher Holzoberfläche.

Ablage de Luxe
Ein einfacher Drahtkorb wäre in diesem Duschbereich in dunkler Marmoroptik ein wenig banal gewesen. Hier hat der Fliesenleger aus dem Feinsteinzeug der Wandfliesen eine passende Ablage geschaffen. Praktisch und vor allem optisch aus einem Guss!

Das Beste für die Gäste
Im Gäste-WC wollte der Kunde seinen Besuchern etwas ganz Besonderes bieten: eine moderne Badausstattung auf höchstem Niveau kombiniert mit einer angenehmen und außergewöhnlichen Atmosphäre durch individuelle Beleuchtung.
Hier bot es sich an, die gesamte Raumnische für die Waschtischanlage zu nutzen. Auch in diesem Raum wollte der Kunde beste Materialien und zuverlässige Schreinerarbeiten. Der Design-Waschtisch mit der exklusiven Armatur sollte durch kontrastreiches Holz in Szene gesetzt werden.
Markus Klein
Der ganz besondere Akzent in diesem Raum wird durch die beiden Hängeleuchten erzielt, die im Retro-Stil das außergewöhnliche Gesamtbild abrunden. Auch die spezielle Putztechnik komplettiert die spannende Raumwirkung. Großzügige Ablageflächen auf zwei Ebenen lassen dem Kunden vielseitige Möglichkeiten, den Raum immer wieder neu zu akzentuieren.
Sie möchten Ihr Badezimmer renovieren?
Wir beraten Sie gerne. Rufen Sie uns einfach an oder schicken Sie uns eine Online-Anfrage:

Zusätzliche Informationen
Weitere Informationen zu Themen wie Badrenovierung, Komplettbad-Beratung und Budgetplanung erhalten Sie hier:

Wir hören Ihnen genau zu
Unsere Badplaner zeichnet eine Gabe aus, die häufig unterschätzt wird: Die Kunst des Zuhörens. Nur so erfahren wir, was Kunden wirklich wünschen.

Schrittweise zum Bad
Von der ersten Idee zum Plan und vom Plan in die Umsetzung – Schritt für Schritt kommt man mit unseren Fachleuten zum Traumbad.

Was ein Bad wirklich kostet
Was sich hinter Begriffen wie Economy-Bad, Komfort-Bad oder Premium-Bad verbirgt und was das für Ihre Budgetplanung bedeutet.







